Flexibel kontorslokal på 971 kvm!
Välkommen till en flexibel och modern kontorslokal om 971 kvm, perfekt belägen nära riksväg 40 och 41. Här erbjuds en rymlig och ljus arbetsmiljö med stora fönster som släpper in gott om dagsljus, vilket skapar en inspirerande atmosfär för både medarbetare och besökare.
Lokalen har en öppen och flexibel planlösning som enkelt kan anpassas efter just ert företags behov – oavsett om ni föredrar öppna kontorslandskap, privata kontorsrum, mötesrum eller kreativa samarbetsytor. För dig som söker en mindre yta finns även möjlighet att dela upp lokalen i mindre enheter, vilket gör den lika attraktiv för mindre verksamheter som för större företag.
Läget är optimalt för företag som värdesätter goda kommunikationer. Med närhet till både riksväg 40 och 41 har ni smidig tillgång till såväl lokal som regional trafik, vilket gör det enkelt för både personal och kunder att ta sig hit. Dessutom finns gott om parkeringsplatser precis utanför entrén, vilket underlättar vardagen ytterligare.
Tack vare det utmärkta skyltläget får ditt företag dessutom hög synlighet mot förbipasserande trafik – en värdefull exponering för varumärket.
Detta är en kontorslokal för företag som vill växa i en modern, lättillgänglig och trivsam miljö. Kontakta oss redan idag för att boka en visning och upptäck möjligheterna!
Omgivning
Katrinedal är ett område som består av en blandning av kontorslokaler, gym och servicefunktioner. I närheten finns Annelundsparken med natursköna omgivningar och promenadstråk – perfekt för en lunchpromenad.
Service
I området finns god service såsom restauranger, Friskis & Svettis och gatukök.
Kommunikation
Fastigheten ligger med närhet till riksväg 40 och 41 vilket gör det enkelt att ta sig till och från byggnaden med bil. Goda kollektivtrafikförbindelser finns i närområdet.
Parkering
Goda parkeringsmöjligheter finns utanför byggnaden.
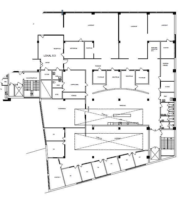
Planlösning
Blandad planlösning med öppna ytor och inslag av cellkontor. Flexibel utformning som kan anpassas efter verksamhetens behov.
Bekvämligheter
- Besöksparkering
- Cykelrum
- Elbilsplatser
- Fiberanslutning
- Kök/pentry
- Kundparkering
- Lasthiss
- Mötesrum
- Parkering
- Restaurang
- Skyltläge
- WC/RWC
Kontakt
Välkommen att kontakta oss för mer information eller för att boka en visning.
Område: Katrinedal
Tillträde: Enligt. ök.
- Närhet till centrum
- Lätt att ta sig till och från fastigheten
- Bra parkeringsmöjligheter








